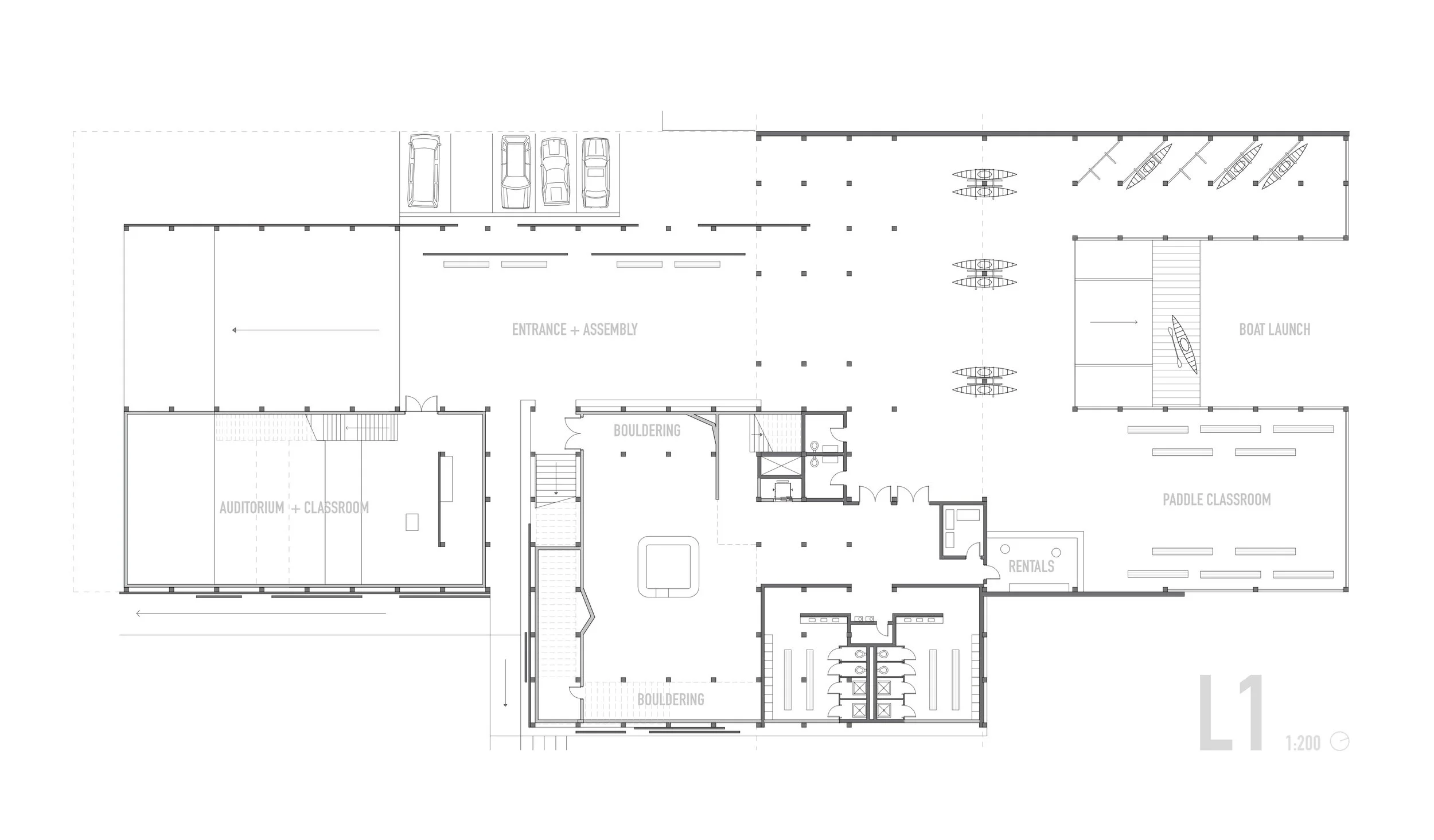
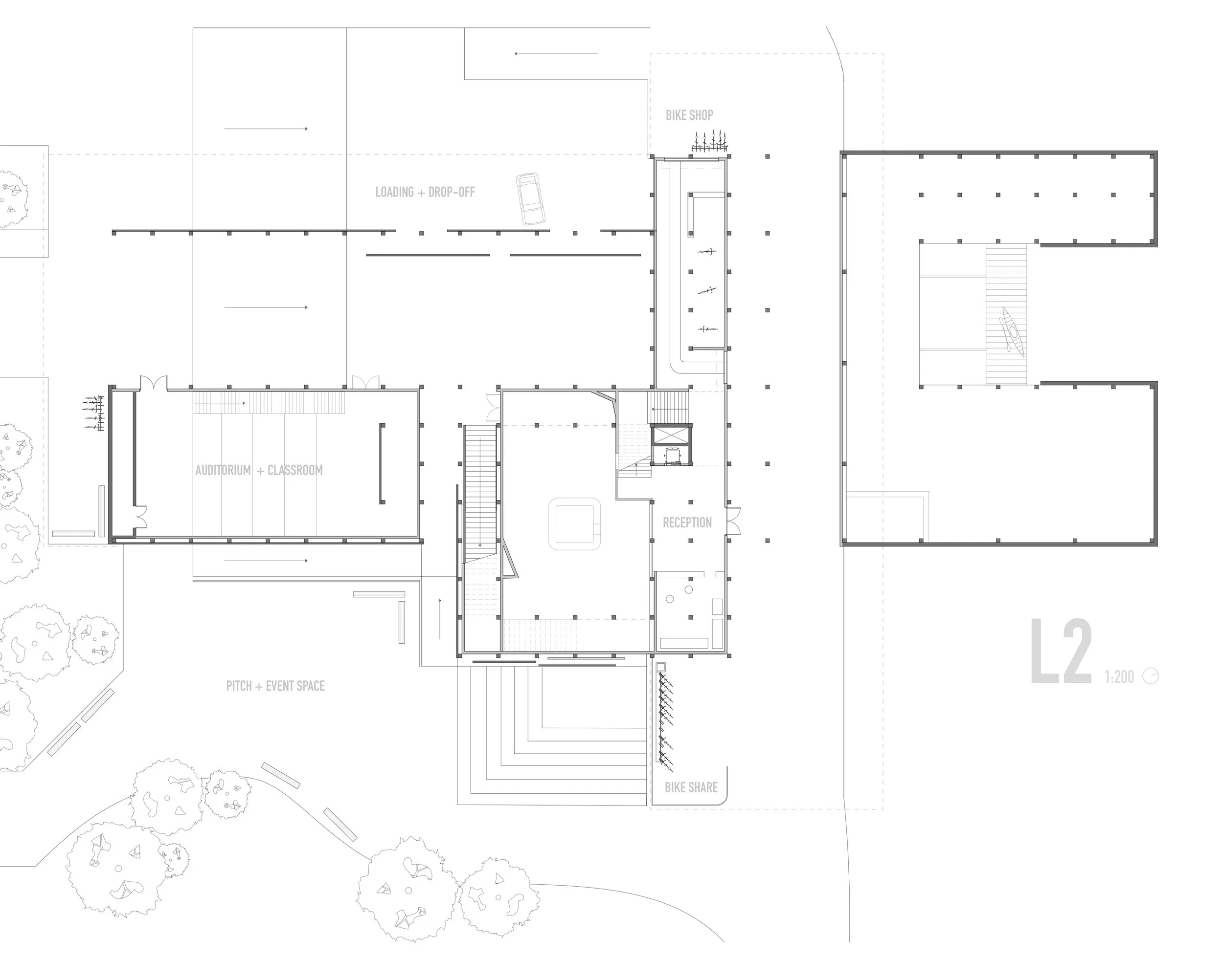
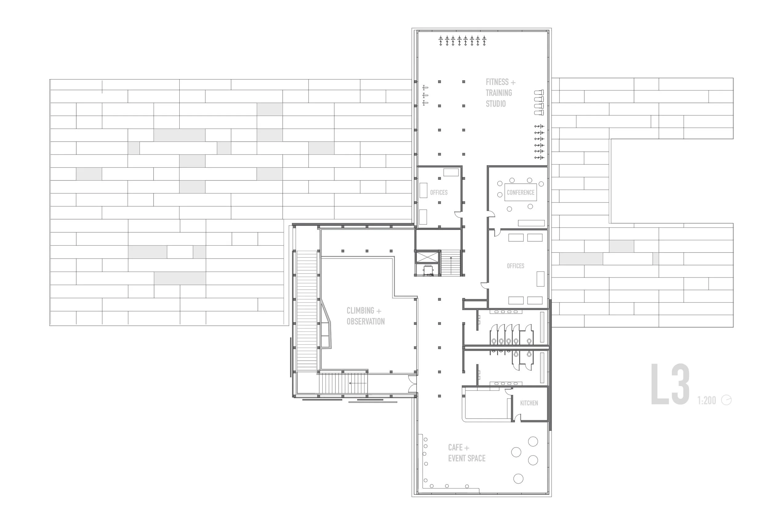
Nexus- Recreation Centre

This imagined collaboration between Mountain Equipment Co-op and the City of Vancouver aims to engage the public with the activities of kayaking, climbing and cycling within the unique coastal environment of BC’s West Coast. Initial observations of the South East False Creek site revealed two existing vectors for these activities: a clear land to sea connection running parallel to the Cambie Street Bridge and the Vancouver seawall providing both pedestrian and cycling access along
it’s shoreline. With the potential of introducing a third vertical movement to the site, the opportunity to materialize this intersection became our primary parti.

Each of these activities has their own unique choreography and spatial requirements. These kinetic gestures inspired the shaping of three individual volumes. In the spaces of volumetric overlap, structure, program and material formed literal and phenomenal transparency. These gradual thresholds help to visually connect seemingly disparate movements so that users of each space can observe one another in an effort to encourage a cohesive whole.

The facade of the structure was integrated into the concept through use of overlap and intersection. Material experiments in translucent concrete create an unexpected and playful effect of revealing movement and activity through a conventionally opaque material. Structurally, column placement helps to heighten the vertical aspect of the climbing space. In order
to compliment the fast movement of cycling, a cantilevered volume is raised above the seawall in order to cover but not impede movement through the structure. The support for this cantilevered volume is rooted through each volume to create
a eld condition that highlights this overlap and connection between spaces and activities.

Collaborators: Jedrik Mangahis, Alexander Mercer